「なちゅらる・すぺーす・でざいん」は大阪府堺市で分離分割発注・CM方式を実践している建築設計事務所です。

ほーむ〜大阪府堺市で分離分割発注・CM方式を実践している「なちゅらる・すぺーす・でざいん」のトップページです〜

あなたと共に〜住まい(家)造りには専門家知恵が必要です。〜

想いを形に〜住まいが出来るまで、大まかなスケジュールを書いています。〜

無から有へ〜現場監理報告と職人達の奮闘日記です。〜

祝・完成!〜新築住宅、リ・ホーム、店舗等〜

僕のこと〜プロフィール、思い、アクセス〜

Nスタイル〜「なちゅらる・すぺーす・でざいん」が考えた、「こだわり」をテーマにしたコンセプト住宅の紹介です。〜

産直の住まい造り〜生産者、職人達の顔が見える住まい(家)造りとは〜

Lohas スタイル〜心と身体を癒す、自然と環境に配慮した住まい(家)造りとは〜

My life my style〜自分らしく生きる為の住環境をテーマにリ・ホームを考える〜

Get ! chance〜「なちゅらる・すぺーす・でざいん」が考える、ビジネスシーンのお手伝いとは?〜

CM・アーキテクツ〜僕が所属するCM方式を実践する専門家の団体です〜

NPO快適な住まいを考える会〜僕が所属する賢い消費者を増やす為の活動を行っている団体です〜

最初の第一歩〜ご相談・お問い合せ・資料請求〜気軽にご相談下さい〜

始まりのいえ

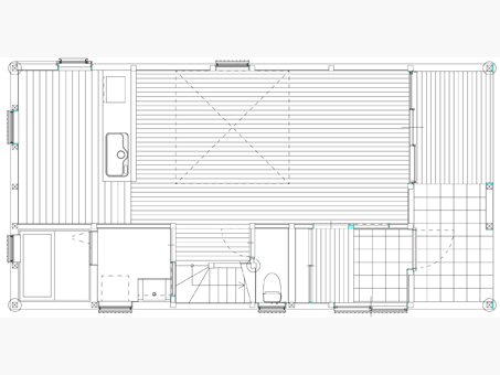
特徴

*インナーデッキスペース
玄関ポーチと居間から続く木製デッキ部分は軒の深い濡縁をイメージしています。

*リビング・ダイニング
3枚引き違いの大開口サッシと、ほぼ真ん中にある吹抜けで家全体に一体感を持たせて、狭小地でもトップライトから入る光で家中の明るさを確保できます。

*オープン型のキッチンは、家事を行いながらも、家族との会話を楽しめ、子供の成長を見守る事が可能です。勝手口は狭小地対応の引き戸で考えています。
 
1階平面図 2階平面図 立面図 見積書
1階平面図 2階平面図 立面図 見積書